Maybole

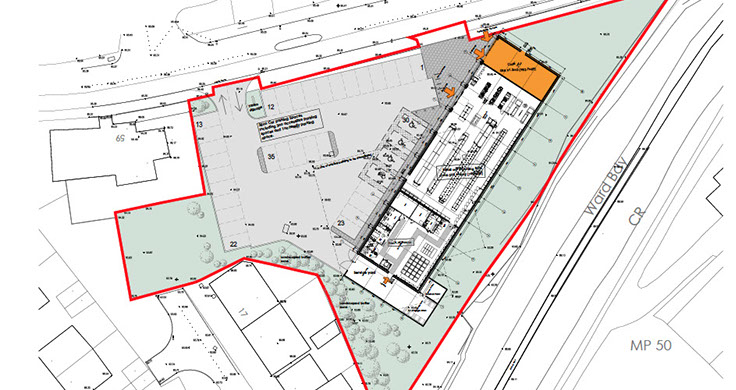
Crucible Developments were approached by the Co-operative Food Group to assist in identifying options for their expansion in Maybole. Having identified a suitable site, a conditional purchase was agreed. Planning was submitted in February 2021 for the demolition of an industrial building replacing it with a modern 8,500 sq.ft retail development comprising a 7,500 sq.ft Co-op food store and a 1,000 sq.ft café unit.

Back to Projects Overview

©2020 Crucible Developments. All rights reserved.

©2020 Crucible Developments. All rights reserved.

©2020 Crucible Developments. All rights reserved.